München, Deutschland

Freistehendes Familiendomizil mit viel Raum für individuelle Wohnideen

Freistehendes Familiendomizil mit viel Raum für individuelle Wohnideen

Dieses freistehende Einfamilienhaus in begehrter, ruhiger Lage begeistert mit einer Südwestausrichtung und einem traumhaft eingewachsenen Garten mit altem Baumbestand. Auf dem ca. 600 m² großen Grundstück gelegen, bietet das Haus mit einer Wohnfläche von rund 230 m² vielfältige Nutzungsmöglichkeiten, ob als großzügiges Einfamilienhaus, Mehrgenerationenwohnen oder attraktive Neubauchance.
Das im Jahr 1952 errichtete Haus wurde 1976 um einen Anbau erweitert. 

Im Erdgeschoss wurde zuletzt eine Steuerberatungskanzlei betrieben, wodurch sich die Räumlichkeiten ideal für eine Kombination aus Wohnen und Arbeiten unter einem Dach eignen. Vom Erdgeschoss aus gelangt man über die großzügige Terrasse in den liebevoll angelegten Garten, ein perfekter Ort für entspannte Stunden im Grünen.


Das Obergeschoss diente zuletzt als Wohnetage und überzeugt durch seine angenehme Raumaufteilung und den Zugang zum sonnigen Balkon mit schönem Gartenblick. Durch die Südwestausrichtung genießen die Wohnräume den ganzen Tag über viel natürliches Licht und eine freundliche, einladende Atmosphäre.


Das Haus ist vollständig unterkellert und bietet im Untergeschoss neben dem Heizungskeller zwei vielseitig nutzbare Hobbyräume sowie einen praktischen Hauswirtschaftsraum.

Eckdaten

Das Haus präsentiert sich als solider Massivbau aus den 1950er-Jahren, der 1976 um einen Anbau in Richtung Garten erweitert wurde. Dank der attraktiven Südwestausrichtung genießen die Räume viel Tageslicht und eine freundliche Atmosphäre. Bodentiefe Terrassentüren und großzügige Fensterfronten öffnen den Wohnbereich harmonisch zum Garten hin und schaffen ein angenehmes Wohngefühl mit fließendem Übergang zwischen Innen und Außen.

Im 1. Obergeschoss erweitert ein großzügiger Balkon den Lebensraum im Sommer und sorgt mit der praktschen Außentreppe für einen direkte Zugang zum Garten.

Die Raumaufteilung ist klassisch und funktional: Eine separate Küche auf beiden Ebenen sowie Tageslichtbäder sorgen für eine gute Grundlage und eine flexible Grundrissgestaltung.

Im vollständig unterkellerten Untergeschoss befinden sich ein Hauswirtschafts- und Heizungsraum sowie zwei vielseitig und individuell nutzbare Hobbyräume. Eine Garage wie auch zusätzliche Außenstellplätze erleichtern den Alltag durch bequemes An- und Abfahren.

Insgesamt bietet die Immobilie eine gepflegte Basis mit ehrlicher Substanz und viel Potenzial für eine zeitgemäße Sanierung nach eigenen, individuellen Wohnvorstellungen.

ImmobilientypEinfamilienhaus
Zimmer6
Baujahr1952
Badezimmer2
Wohnflächeca. 230 m2
Parkplätze4
Grundstückca. 600 m2
Provision3,57% inkl. MwSt.
Video
Highlights
Garage und Außenstellplätze
Gepflegter Garten
Südwestausrichtung
Großzügiges Grundstück
Familienfreundliche Lage
Grundrisse
Erdgeschoss Ist-Zustand
Erdgeschoss Umbauvariante
Obergeschoss Ist-Zustand
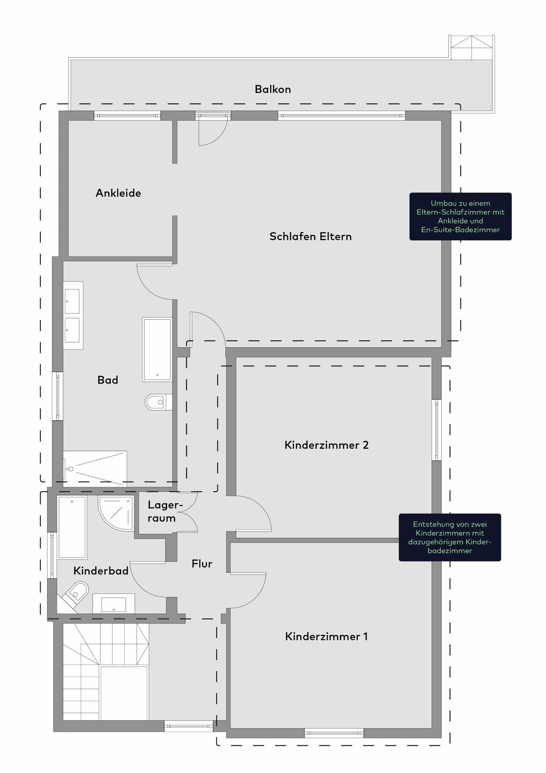
Obergeschoss Umbauvariante
Untergeschoss Ist-Zustand
Untergeschoss Umbauvariante