München, Deutschland

Großzügige Garten-Maisonette mit privatem Außenbereich

Jetzt registrieren
Großzügige Garten-Maisonette mit privatem Außenbereich

Diese großzügige Maisonette-Wohnung erstreckt sich über drei Ebenen (UG, EG, OG) und bietet eine angenehme Balance zwischen offener Wohnatmosphäre und persönlicher Rückzugsmöglichkeit. Besonders Familien oder Paare werden den durchdachten Grundriss und das freundliche Ambiente schätzen. Große Fensterflächen sorgen für viel natürliches Tageslicht und schaffen helle, wohnliche Räume. Ein Highlight ist die überdachte Terrasse, die in den gepflegten Garten führt und ideal für gemeinsame Stunden im Freien geeignet ist.

Eckdaten

Die Wohnung verfügt über eine praktische und solide Ausstattung, die das tägliche Leben komfortabel gestaltet. Im Eingangsbereich befindet sich eine moderne Videosprechanlage. Die geräumige, U-förmige Einbauküche ist gut ausgestattet und bietet ausreichend Platz zum gemeinsamen Kochen und Essen. Über eine schön gestaltete Natursteintreppe mit indirekter Beleuchtung gelangt man ins Obergeschoss, wo sich ein großzügiges Schlafzimmer mit Zugang zu einer zweiten Terrasse sowie ein Badezimmer mit Dusche und Badewanne befinden. Zusätzlich sorgen bodentiefe Fenster, elektrische Rollläden, Fußbodenheizung und Insektenschutznetze für angenehme Wohnbedingungen. Praktisch ergänzt wird das Raumangebot durch ein Gartenhaus zur Aufbewahrung.

ImmobilientypEigentumswohnung
Zimmer4
Baujahr1971
Badezimmer3
Wohnflächeca. 174 m2
Parkplätze1
Provision3,57% inkl. MwSt.
Highlights
zwei Terrassen
Garten
Hobbyräume
Einbauküche
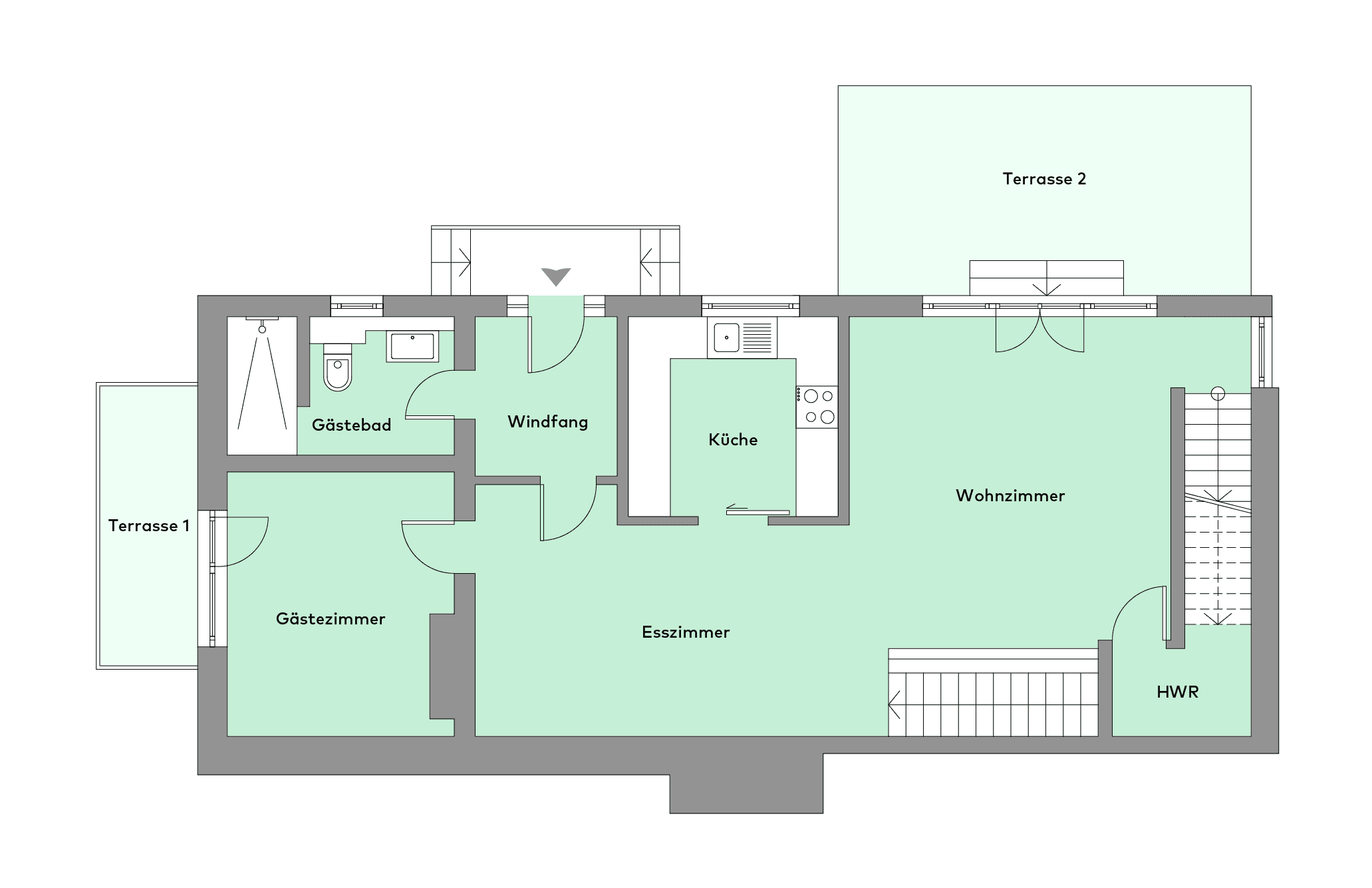
Grundrisse
Erdgeschoss
Obergeschoss
Kellergeschoss