Ottweiler, Deutschland

NM 13: Luxuriöses Ensemble mit flexibler Nutzung

NM 13: Luxuriöses Ensemble mit flexibler Nutzung

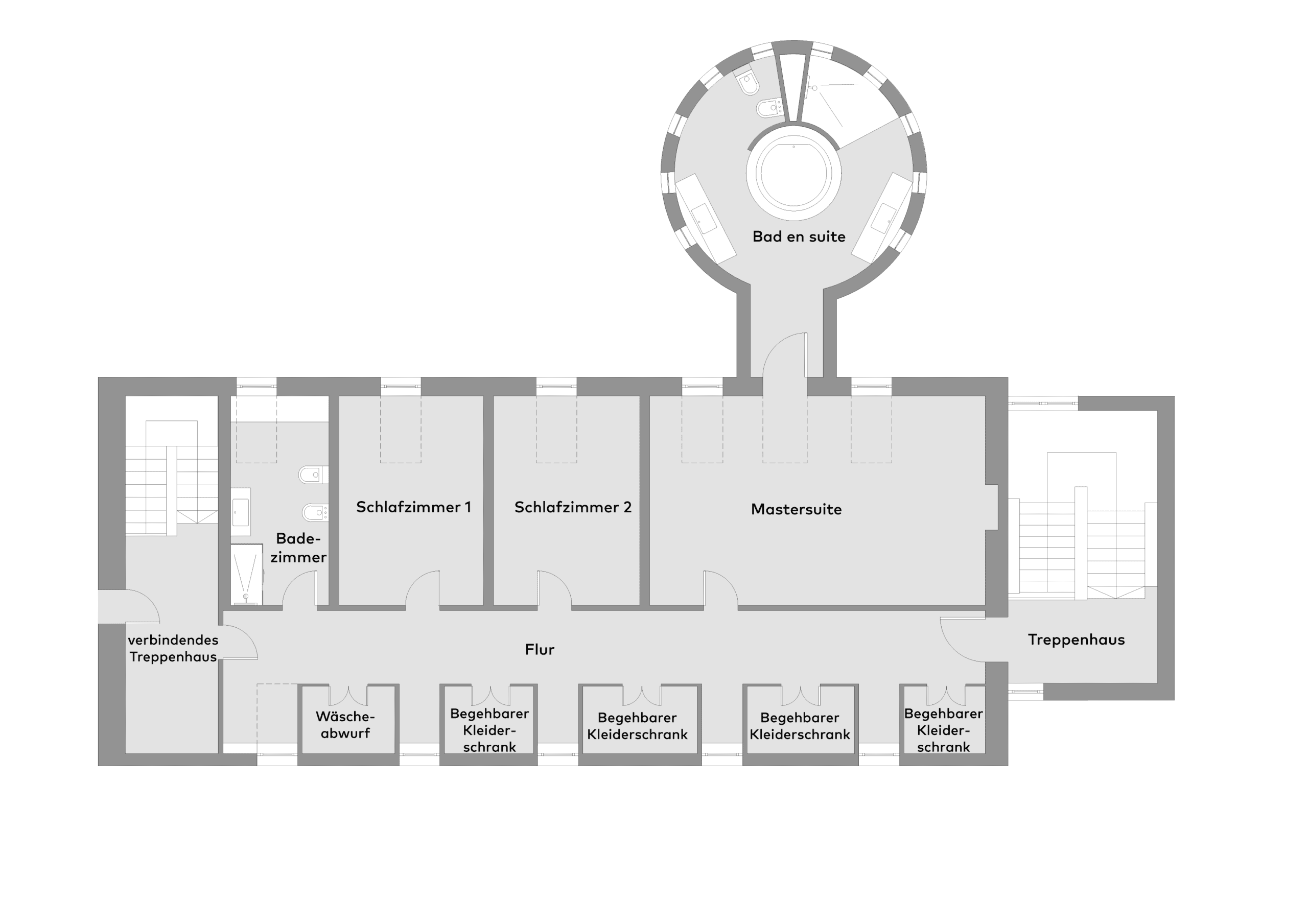
Die Immobilie erstreckt sich auf ca. 12.500 m² Grundstück und bietet insgesamt 682 m² netto Nutzfläche, die sich auf Wohn- und Gewerbeeinheiten aufteilen. Das Gebäude besticht durch seine klare Architektur, hochwertige Materialien und eine großzügige Raumaufteilung, die sowohl für private als auch gewerbliche Nutzung perfekt geeignet ist. Durch die umfassende Renovierung wurde der Charme des Gebäudes bewahrt, während gleichzeitig moderne Standards und Technologien integriert wurden. Pierre de Tavel, ein edler Naturstein aus dem Rhonetal, wurde im Bad en suite verwendet und verleiht NM 13 eine ganz besondere Ausstrahlung. Die Kombination aus traditioneller Architektur und zeitgenössischem Design macht diese Immobilie zu einem wahren architektonischen Juwel.

Eckdaten

Beide Einheiten erstrecken sich über drei Etagen und bieten mit ca. 311 m² (Wohnen) bzw. 371 m² (Gewerbe) flexible Raumkonzepte, die individuelle Nutzung ermöglichen.

Die Wohneinheit besticht durch großzügige Wohnbereiche, eine moderne Küche, sowie exklusive Extras wie einen Spa-Bereich im Untergeschoss, ein luxuriöses Hammam-Badezimmer im Obergeschoss und vielfältige Stauraumlösungen. Der turmförmige Anbau eignet sich ideal als Bibliothek oder Ruhezone.

Die Gewerbeeinheit ist ideal für Unternehmen und kreative Arbeitswelten: Sie umfasst Büros, Besprechungsräume, Technik- und Aktenräume sowie sonnige Terrassen mit Blick ins Grüne. Die Maisonette-Struktur schafft eine angenehme Arbeitsatmosphäre mit guter Verbindung von Innen- und Außenbereichen.

Beide Einheiten sind durchdacht gestaltet, stilvoll ausgestattet und verfügen insgesamt über zwei vollausgestattete Bäder sowie fünf WC’s mit Ausbaupotential. So könnten bei Bedarf bis zu sechs separate Wohneinheiten entstehen.

ImmobilientypWohn- und Gewerbeimmobilie
Zimmer13
Baujahr1907
Badezimmer7
Wohnflächeca. 680 m2
Parkplätze7
Grundstückca. 12500 m2
Provision2,975% inkl. MwSt.
Video
Highlights
Parkanlage
Doppelgarage mit direktem Hauszugang
Kameraüberwachung
Spa-Bereich
individuelle Nutzung
Fünf WC's mit Ausbaupotential
Grundrisse
Wohneinheit UG
Wohneinheit Hochparterre
Wohneinheit OG
Gewerbeeinheit EG
Gewerbeeinheit Hochparterre
Gewerbeeinheit OG