Palma, Spanien

Traumhaftes Penthouse mit Meerblick

Palma, Illes Balears, Spain
Jetzt registrieren
Traumhaftes Penthouse mit Meerblick

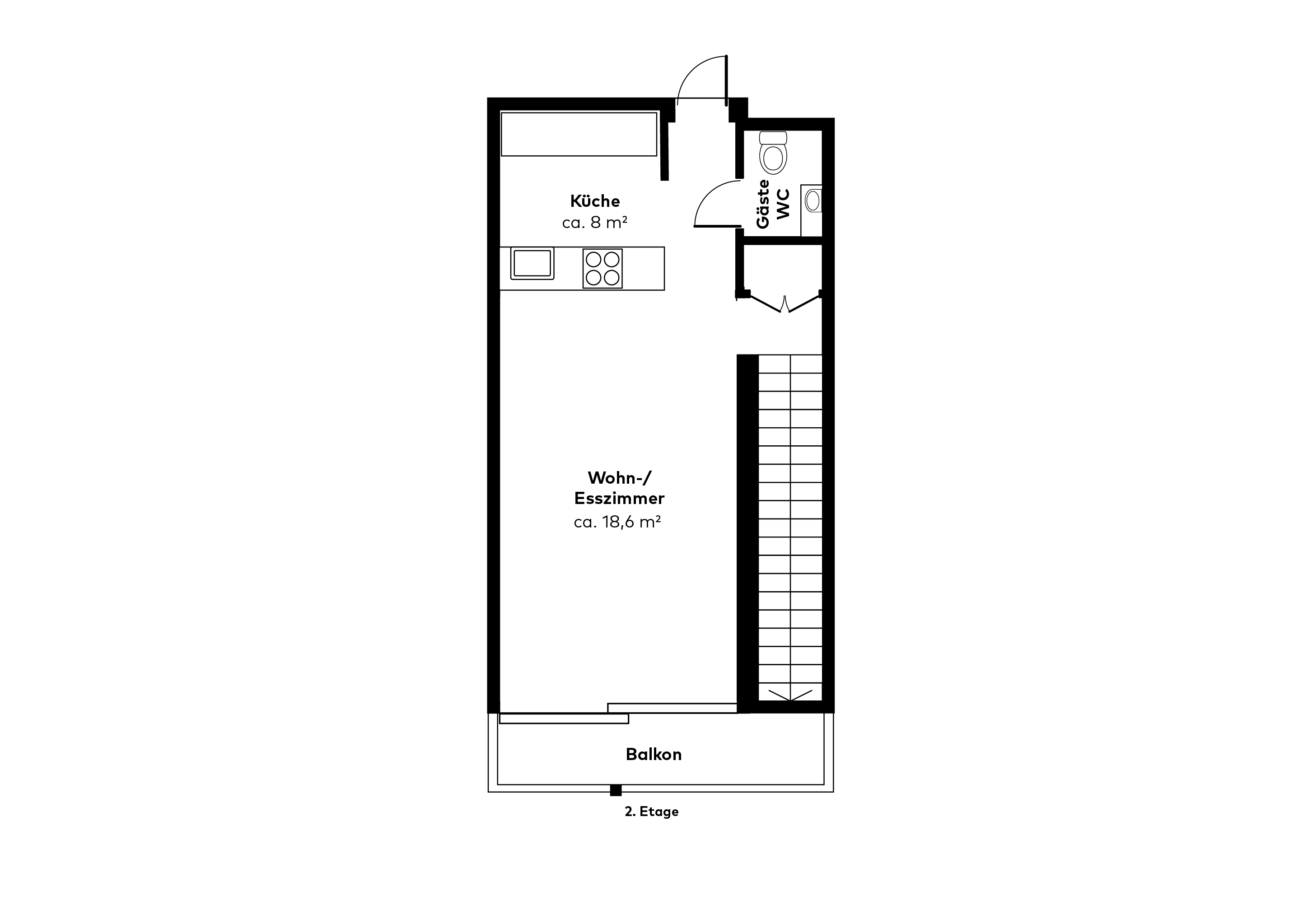
Diese atemberaubende Penthouse in der begehrten Wohngegend von Bonanova, Palma de Mallorca, bietet einen spektakulären Meerblick von jeder Ebene der Wohnung. Die Wohnebene bietet eine schöne Kombination aus Wohn-Essküche mit hochwertigen Markengeräten von Miele und Bora und Wohnzimmer, welche auch Zugang zum Balkon und herrlichen Sonnenterrasse bietet.

Die untere Etage beherbergt die beiden geräumigen Doppelschlafzimmer mit eigenem Bad sowie das Hauptschlafzimmer mit Ankleidezimmer. Die elegante Wohnung gehört zu einer Siedlung mit zwei exklusiven Gebäuden. Beide Komplexe verfügen über Tiefgaragenstellplätze, Kellerräume und einen klimatisierten Fitnessraum.

Eckdaten

Diese Immobilie ist mit einer Vielzahl von modernen Annehmlichkeiten ausgestattet, die höchsten Komfort und Sicherheit bieten. Die Klimaanlage sorgt für eine angenehme Temperatur im Sommer und im Winter, während die Zentralheizung für wohlige Wärme an kühlen Tagen sorgt. Der Aufzug erleichtert den Zugang zu den verschiedenen Etagen der Immobilie.
Die Fußbodenheizung ist ein weiteres Extras, die diese Immobilie zu einem wahren Traum machen. Mit dieser umfassenden Ausstattung wird das Leben in dieser Immobilie zu einem echten Genuss.

Die Immobilie befindet sich in einer ruhigen Sackgasse, was für Privatsphäre und Ruhe sorgt. Die doppelverglasten Fenster und elektrischen Jalousien sorgen für eine hervorragende Schalldämmung und Sicherheit. Ein weiteres Highlight dieser Immobilie ist das Fitnessstudio, das den Bewohnern die Möglichkeit bietet, in Form zu bleiben. Die elektronische Türsprechanlage, die vorinstallierte Alarmanlage sowie die verstärke Wohnungstür gewährleisten ein hohes Maß an Sicherheit. Ein Tiefgaragenstellplatz bietet zusätzlichen Platz für Ihr Fahrzeug. Im Untergeschoss befinden sich auch der Kellerraum, der zum Penthouse dazu gehört.

ImmobilientypPenthouse
Zimmer3
Baujahr2022
Badezimmer1
Wohnflächeca. 106 m2
Parkplätze1
Provision5 % zzgl. MwSt.
Video
Highlights
Klimaanlage
Aufzug
Pool
Fitnessraum
Elektrische Jalousien
Videoeingangssystem
Tiefgaragenstellplatz
Kellerraum
Alarmanlage
Grundrisse
3. OG
2. OG