München, Deutschland

Reihenmittelhaus mit Westgarten und direktem Zugang zum Südpark

Jetzt registrieren
Reihenmittelhaus mit Westgarten und direktem Zugang zum Südpark

Dieses gepflegte Reihenmittelhaus bietet auf 135,79 m² Wohnfläche ein durchdachtes Zuhause für Familien oder Paare, die Eigenständigkeit ohne WEG-Strukturen schätzen. Der Grundriss verteilt sich auf drei Wohnetagen plus Vollkeller und kombiniert klassische 60er-Jahre-Bausubstanz mit zahlreichen Modernisierungen.

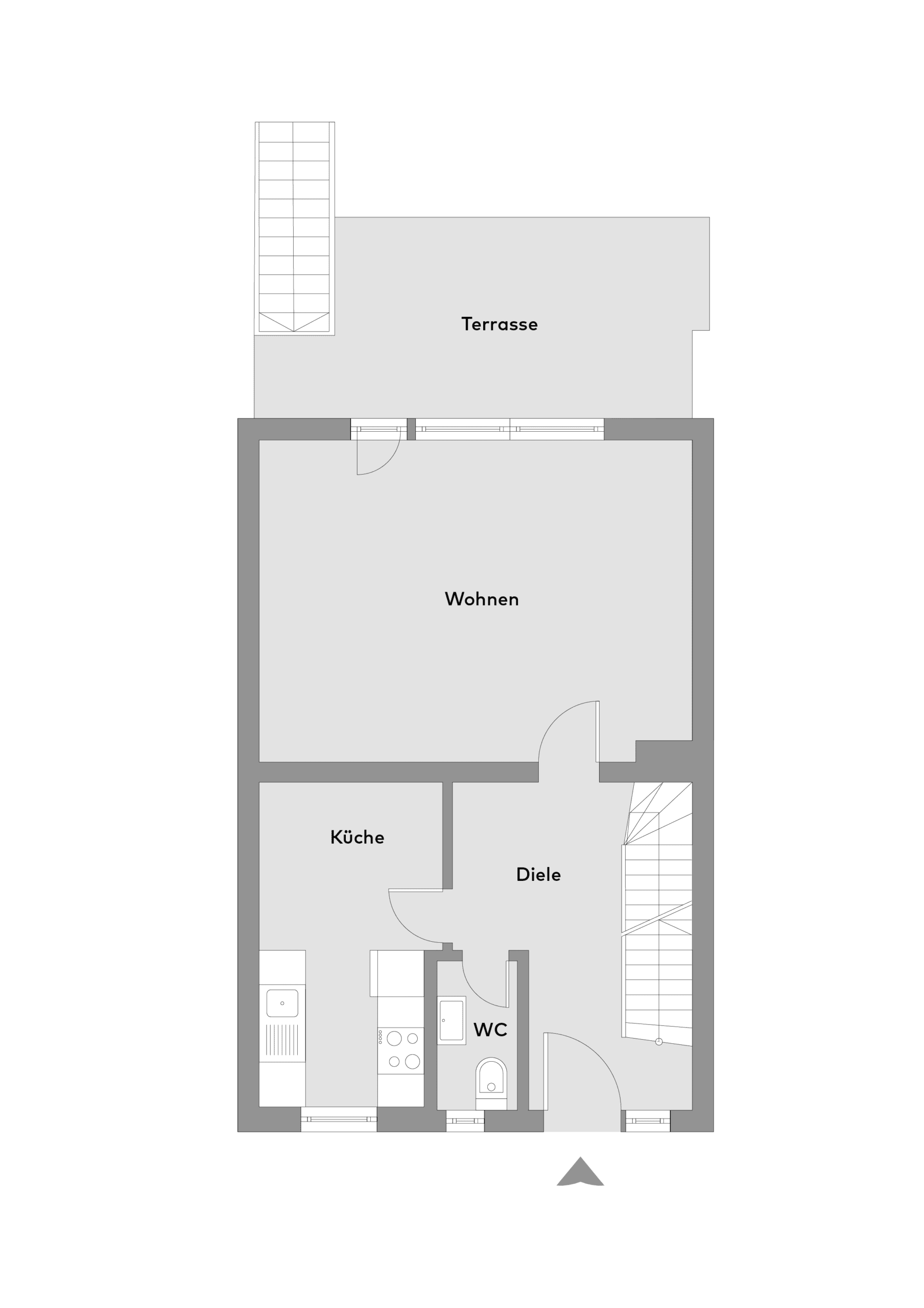
Im Erdgeschoss empfängt eine freundliche Diele mit Gäste-WC. Der großzügige Wohn[1]und Essbereich mit großem Fensterband zum Garten ist mit einem zeitlosen Stäbchenparkett ausgestattet und bildet das kommunikative Zentrum des Hauses. Die separate Küche ist praktisch geschnitten und als Einbauküche nutzbar, die übrigen Bereiche im Erdgeschoss sind pflegeleicht gefliest.

Die überwiegend überdachte West-Terrasse erweitert den Wohnraum in den Garten und bietet sowohl sonnige Plätze als auch geschützte Bereiche. Der Garten ist eingewachsen, sehr privat angelegt und endet an einem Gartentor, Die Wohnung das direkt auf einen Fußweg im Südpark führt – ideal für Spaziergänge, Jogging oder mit Kindern „einfach schnell in den Park“. Links an der Terrasse führt ein Außenzugang in den Keller; der angrenzende Raum eignet sich bestens als Hobby-, Fitness- oder Musikraum und wird bewusst nicht in der Wohnfläche geführt.

In den beiden oberen Etagen befinden sich insgesamt vier gut geschnittene Zimmer sowie zwei Bäder. Das ausgebaute und gedämmte Dachgeschoss (2004) schafft eine zusätzliche, vollwertige Wohnebene mit eigenem Bad – perfekt als Elternbereich, Gäste- oder Homeoffice-Etage. Aufgrund der vorhandenen Kubatur erscheint langfristig (vorbehaltlich Genehmigung) auch ein teilweiser Ausbau mit Gauben denkbar.

Ein Vollkeller mit mehreren Abstell- und Technikräumen sowie der kleine Vorgarten mit Platz für Fahrräder oder ein Gartenhaus runden das Angebot ab.

Eckdaten

Das Haus wurde in massiver Bauweise errichtet und im Laufe der Jahre umfassend modernisiert. Neben den bereits genannten Erneuerungen wie Dachausbau, Heizung, Böden, Küche, Bädern, Türen und Treppe überzeugt die Immobilie durch eine durchdachte und gepflegte Ausstattung. Im gesamten Haus sind überwiegend 2-fach verglaste Kunststofffenster verbaut. An allen Fenstern befinden sich Rollläden mit Gurtzug, die sowohl für Verdunkelung als auch für Wärme- und Einbruchschutz von Vorteil sind. Sämtliche Räume verfügen über Tageslichtfenster – es gibt keine fensterlosen Wohn- oder Nutzräume.

Im Erdgeschoss wurde im Wohnbereich Stäbchenparkett verlegt, während Diele, Küche und Gäste-WC mit Fliesen ausgestattet sind. In Obergeschoss und Dachgeschoss kommen pflegeleichte Laminatböden zum Einsatz, die ein wohnliches Ambiente schaffen. Die sanitäre Ausstattung umfasst zwei modernisierte Tageslichtbäder im 1. Obergeschoss und im Dachgeschoss mit zeitgemäßer Keramik und ansprechenden Fliesen; zusätzlich steht im Erdgeschoss ein Gäste-WC zur Verfügung. Die Innentüren wurden 2010 erneuert, die moderne Treppenanlage stammt aus dem Jahr 2014 und wertet das Erscheinungsbild im Haus deutlich auf. Die Wärmeversorgung erfolgt über eine Gasheizung aus dem Jahr 2004.

Im Kellergeschoss stehen mehrere trockene, gut nutzbare Kellerräume zur Verfügung, ein – schließlich Heizungsraum, Lagerflächen und einem Hobbyraum, der direkt vom Garten aus zugänglich ist. Insgesamt ergibt sich ein stimmiges und gepflegtes Gesamtbild: solide Bausubstanz, moderne Haustechnik und eine Ausstattung, die sofort nutzbar ist und zugleich Raum für individuelle Weiterentwicklungen lässt.

ImmobilientypReihenmittelhaus
Zimmer5
Baujahr1968
Badezimmer2
Wohnflächeca. 136 m2
Grundstückca. 183 m2
Provision2,975 % inkl. MwSt.
Highlights
Sonniger Westgarten
Garten mit direkter Anbindung in den Südpark
Großzügiger Keller mit viel Potenzial
Ausgebauter Dachboden mit eigenem Badezimmer
Tageslicht und Rollläden in allen Räumen
Ruhige, familienfreundliche Lage
Grundrisse
Erdgeschoss
Obergeschoss
Dachgeschoss
Kellergeschoss